Alcubilla de Nogales vuelve a quedarse sin velatorio en 2025

La falta de subvenciones imposibilita ejecutar una obra necesaria cuyo proyecto y memoria valorada está terminado desde 2019
|

Entrada alcubilla bascula
El Ayuntamiento prevé ubicar el velatorio a la entrada del pueblo viniendo desde Alija del Infantado

Seis años hace ya que el Ayuntamiento de Alcubilla de Nogales empezó a pedir financiación para poder dotar al pueblo de un velatorio municipal. Son los mismos que lleva como alcalde Javier Fuente, quien tenía claro que era una prioridad para esta pequeña localidad zamorana.

Sin embargo, este 2025 que está a punto de terminar, tampoco será el año en que se consiga este objetivo. El proyecto, como explica el alcalde, está hecho desde octubre de 2019, con su memoria valorada, “que ya ni servirá, que ese es otro tema, porque los precios que recogía hace seis años no son los mismos de ahora”, explica.

El problema, según explica, es la falta de apoyo económico de las administraciones. Fuente lo intentó en su día con la Junta, sin éxito, y todos estos años con la Diputación de Zamora. Pero, a su juicio, la única forma de financiarlo sería que el organismo provincial  les diera una subvención nominativa, “pero me dicen que esto tiene que ser con planes provinciales, que todo lo que sea velatorios o nichos tiene que ir financiado así... Y es imposible, porque por planes provinciales nos corresponde muy poco dinero, no llega, y además nos obligan a poner otra parte”, explica.

Fuente asegura que el año pasado, el presidente de la Diputación se comprometió a “valorar” el velatorio, “y este año dijo que de las nominativas no se podía quitar porque había obras necesarias”, subraya, al tiempo que defiende que para “necesarias”, la de Alcubilla.

No obstante, el alcalde no se rinde, y en los Presupuestos para 2026, se incluyen los 90.000 euros de coste total de las obras –según precios de 2019– , porque va a seguir haciendo lo imposible por conseguir dotar a Alcubilla del velatorio que todos los vecinos quieren.

Ya hizo algo similar este año para arreglar el tejado de las antiguas escuelas, juntando el dinero de dos planes provinciales. Pero para renovar las tuberías tampoco llegó porque –explica– el problema para muchas obras, es el tamaño del municipio: “Da igual que tengamos todo hecho y cumplamos los requisitos, porque luego llegas al baremo de población, y nos ganan otros”.

 

Un proyecto que nunca se ha guardado en el cajón

Aunque habrá que actualizar la memoria, lo gordo del proyecto del velatorio está avanzado, y además, siempre sobre la mesa, porque el alcalde no renuncia a él. 

Según la memoria valorada, el edificio se levantaría a la entrada de Alcubilla viniendo desde Alija del Infantado, en una parcela propiedad municipal, parte de la cual está en suelo urbano consolidado. 

Captura de pantalla 2025 12 16 a las 23.11.17
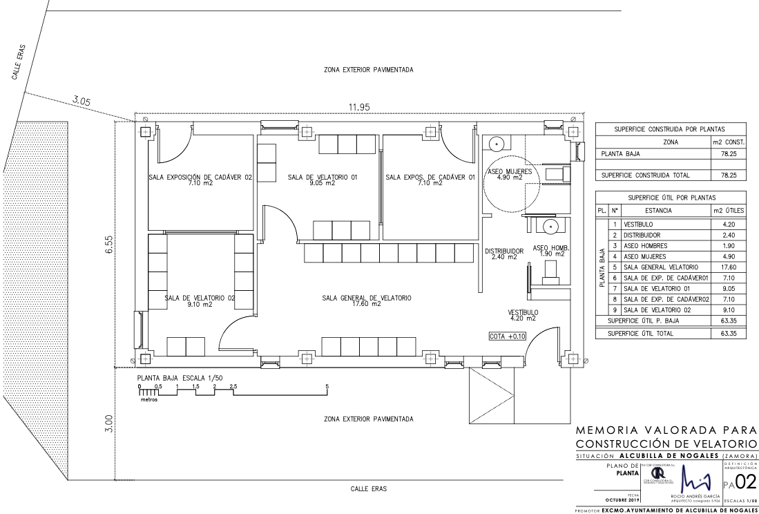
Plano del velatorio recogido en la memoria valorada de octubre de 2019

Con unos 78 metros cuadrados de superficie, contaría con una única planta baja, con vestíbulo, sala general, y dos salas para los fallecidos separadas por una cristalera de sus correspondientes salas de velatorios, que serán independientes. La temperatura y demás condiciones se rigen por la normativa correspondiente a este tipo de instalaciones, y, además, se completaría con los accesos y los aseos de mujeres y hombres.

Para llevarlo a cabo, el proyecto contempla todo el trabajo: desde la limpieza y desbroce de la parcela o el saneamiento, hasta el sistema de climatización.

 

Un presupuesto “optimista”

Los casi 90.000 euros de coste, en cualquier caso, quedan contemplados en el Presupuesto de 2026, que ahora está expuesto al público, antes de la aprobación definitiva.

El presupuesto, aprobado ahora de forma inicial, contempla 325.253 euros de gastos, en los que destaca la alta cifra de inversiones (121.700 euros), porque incluye los 90.000 del velatorio que nunca llega. En los ingresos, la suma asciende a 327.912 euros. “Me parece que es demasiado optimista el presupuesto”, comentaba el alcalde.

Mientras el velatorio no llega, el equipo de Javier Fuente va haciendo lo que puede, arañando financiación –la última, una subvención de Macovall para la limpieza de los caminos–, para dejar el pueblo más bonito y con mejores servicios, como demuestra, por ejemplo, la instalación de riego automático en todos los parques.

 

 

Comentarios