Del eco de las aulas al renacer como vivienda social

El programa Rehabitare convertirá en un hogar el edificio de las antiguas escuelas de Audanzas del Valle.
|

WhatsApp Image 2026 03 17 at 20.20.51
Las obras comenzaron el pasado mes de febrero

Javi dirige la mirada a la primera planta, ya sin las viejas ventanas. “Allí estaba nuestra aula, y abajo la de las niñas, como en todas las escuelas”, dice mientras señala con el dedo. El actual alcalde de La Antigua, Javier Alonso –o Javi de Audanzas, como le conoce toda la comarca–, fue uno de los últimos alumnos que recorrieron los viejos pupitres antes de que las escuelas de su pueblo, ceadas en los 50, echaran en cierre definitivo en 1984. Ahora, cuatro décadas después, el edificio se prepara para un regreso inesperado.

Gracias al programa Rehabitare de la Junta de Castilla y León, el inmueble ha comenzado hace apenas un mes una transformación integral que lo convertirá en una moderna vivienda de alquiler social, que estará lista en agosto.

“Es un sentimiento difícil de explicar: por una parte me da tristeza porque fue mi colegio y allí viví muchas cosas, pero por otra, me alegra que se pueda garantizar su futuro como vivienda, porque el edificio posiblemente con el paso del tiempo se caería y se perdería del todo”, explica Javi.

Aula antigua
Una de las viejas aulas, tal cual quedó el último días de clase, hace 40 años

El Rehabitare busca, precisamente, poder recuperar edificios públicos en desuso y darles una nueva vida como viviendas sociales, de manera que, por un lado, se restaura el inmueble, y, por otro, se fija poblacion en los pueblos, con especial atención a colectivos como el de los jóvenes, que es justo lo que más se necesita en el rural.

Que la iniciativa funciona es un hecho, y son ya unas 700 las viviendas rehabilitadas por la Junta a través de un programa que le ha valido un reconocimiento de la Comisión Europea como ejemplo de buenas prácticas contra la despoblación.

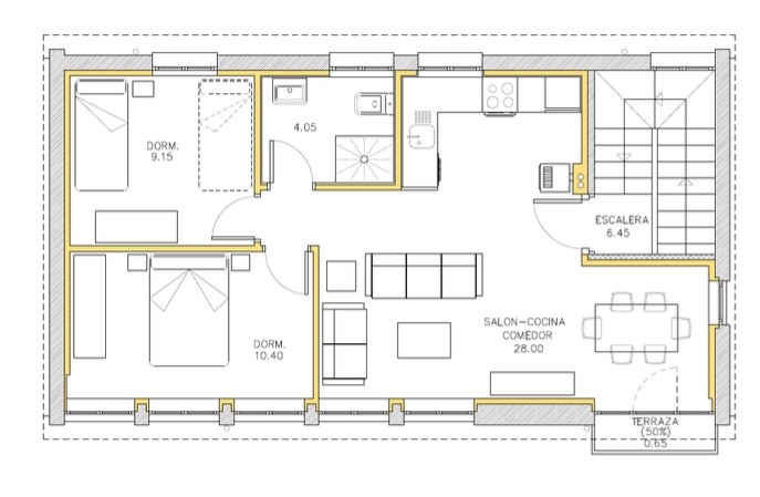
En el caso de las escuelas de Audanzas, el edificio consta de dos plantas comunicadas por una escalera, y es la primera la que se destinará a vivienda con un salón/comedor/cocina, dos dormitorios y un balo completo. En la planta baja, se modificará el acceso para cerrar la escalera de acceso a la vivienda, que tendrá 72 metros cuadrados construidos y 58,70 útiles.

Durante el proceso, se están instalando tabiquerías y trasdosasdo de pladur y aislamiento térmico, así como toda las carpintería exterior e interior. También se dotará a la vivienda de calefacción, y se acometerá la fontanería y la instalación eléctrica, con la colaboración de Ayuntamiento.

El presupuesto total es algo superior a los cien mil euros, sin coste para el Consistorio, más allá de proporcionar acceso a los citados servicios de luz y agua. 

Interior Plano
Plano de distribución de la futura vivienda, facilitado por la Junta

Tal y como establecen las bases del Rehabitare, a partir de ahí la Consejería devolverá al Ayuntamiento la nueva vivienda, con el compromiso de ofrecerla en régimen de alquier social, con lo que el precio no podrá exceder de un tercio de los ingresos del futuro inquilino ni de 3 euros por metro cuadrado.

Mientras la futura vivienda va tomando forma en la calle Mazadín de Audanzas, Javi no puede evitar sentir cierta nostalgia... “Cuando en el 84 nos mandaron a Laguna de Negrillos, íbamos todos contentos, imagínate, ¡con catorce años!... Luego, de mayores fue cuando nos dimos cuenta de lo que perdíamos. Pero mira, al menos sabemos que no acabará como ruina, y que traerá gente al pueblo, que hoy es lo que más necesitamos”, concluye, al tiempo que nos promete invitar a la inauguración. Y, por supuesto, allí estaremos.

 

 

Comentarios